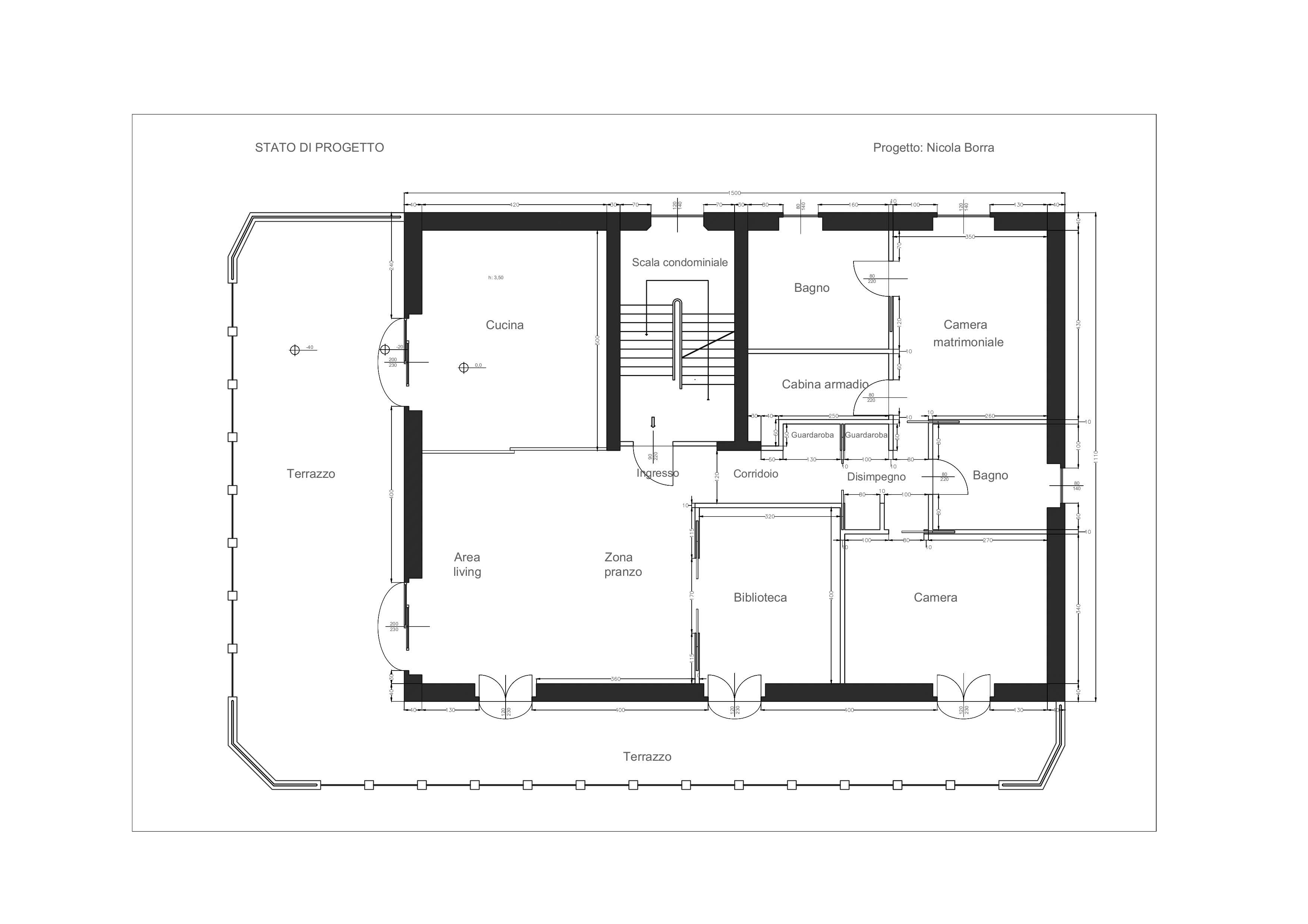
Il progetto riguarda la ristrutturazione e l’arredamento di un appartamento ubicato in un quartiere
centrale di Torino per conto di una coppia di professionisti di mezza età senza figli, amante dei viaggi e
appassionata di arte e di oggetti di design. Alcune caratteristiche dell’appartamento molto apprezzate
dal committente sono l’esposizione a sud-est, la presenza di soffitti alti e l’ampia terrazza.
IMMAGINI TRATTE DAL PROGETTO
Una breve selezioni di immagini tratte dal progetto di Interior Design di Nicola B.