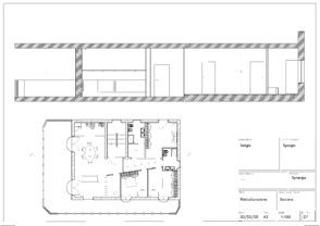
L’appartamento interessato alla ristrutturazione si trova in una zona centrale della città, è un 4° piano di 6, ha una metratura importante pari a 180 mq con un ampio terrazzo di 74 mq.
Si interviene all’interno al fine di ampliare la zona giorno e ridistribuire gli spazi. Si prevede la demolizione di alcune pareti; parete della cucina e della sala, le pareti delle camere da letto e del ripostiglio.
IMMAGINI TRATTE DAL PROGETTO
Una breve selezioni di immagini tratte dal progetto di Interior Design di Maria Pia S.